



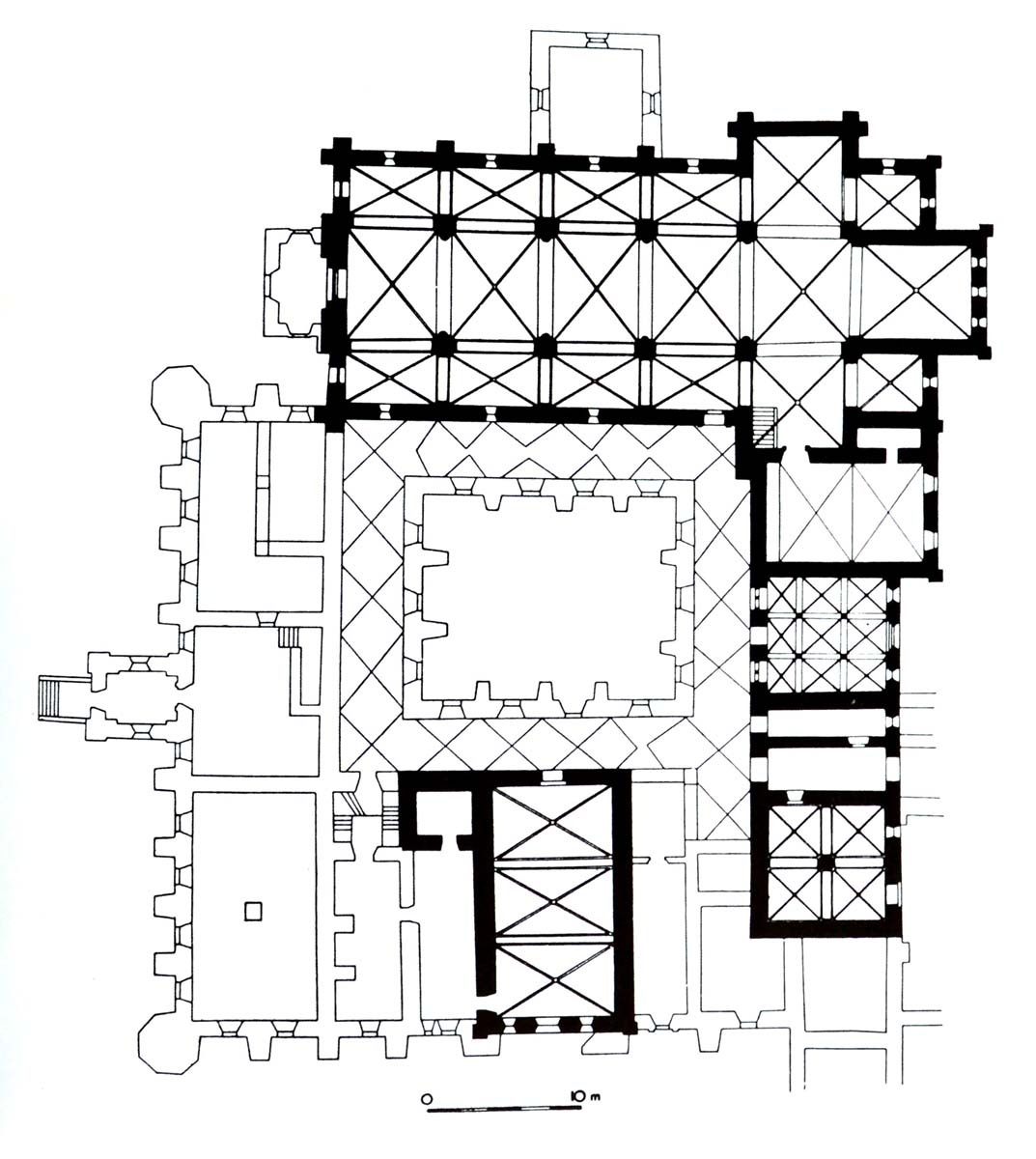
klasztor kapitularz romański cystersów
Epoka: Średniowiecze - Sztuka romańska
Lokalizacja: Wąchock, Polska
- XII wiek - bazylika z kwadratowym prezbiterium, transeptem, sklepieniem krzyżowym - wirydarz ( ogród) - kapitularz (miejsce spotkania wielkiej kapituły) - refektarz - jadalnia - dormitorium - sypialnia - skryptorium - miejsce pisania skrypt - lavatorium - łaźnia